How To Write Dimensions

The extension lines do not touch the walls and dark 45 degree tick marks indicate the extent of the dimensions.
How to write dimensions. Because if someone was to recreate the object you were describing even if it was written l x w x h they might have width be the depth of the object away from them or the length could be the depth. 170 in height x 60 in width x 45 in length. Dimensions how to write. We usually express these dimensions by writing them out separated by a multiplication sign. If there are only 2 dimensions listed 60 60 or 60 130 for example it implies that the lot is either square or rectangular shaped.
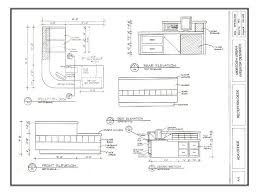
Names of units are made plural only when the numerical value that precedes them is more than one. Often heard writing advice is to write what you know. Figure 6 34 note that the dimensions on this partial floor plan are placed outside of the spaces. Object measurements a three dimensional desk for example may be expressed as 25 x 82 x 39 which means the desk is 25 inches wide by 82 inches long and 39 inches tall. Dimensions are placed on the floor plan as shown in figure 6 34.
In writing at referential dimension level 1 you refer to your own experiences or to the knowledge base you have acquired through all your research education. I would assume it doesn t matter. Use the multiplication sign x in html but not the letter x for expressing screen resolution. Symbols for units are never pluralized. Dimensions are expressed as width by length by height or depth in three dimensional space.
If there are 3 dimensions listed 60x80x100 for example the lot is a triangle with the street side measuring 60ft. For example 250 mm 250 millimeters not 250 mms. Physical dimensions and screen resolution write the physical dimensions of a page or an object by using the word by and not multiplication sign or the letter x. 0 25 liter quantity is less than one and 250 milliliters quantity is more than one. Write what you know.
Write about your own experiences about the topics you know well.